* EXCLUSIVITE – LOCATION – HAGUENAU **
Vous êtes à la recherche d’un bureau pour y implanter votre activité ? Ce projet est fait pour vous !
—– LIBRE D’OCCUPATION —–
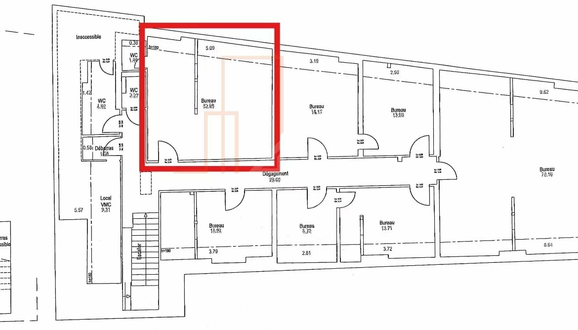
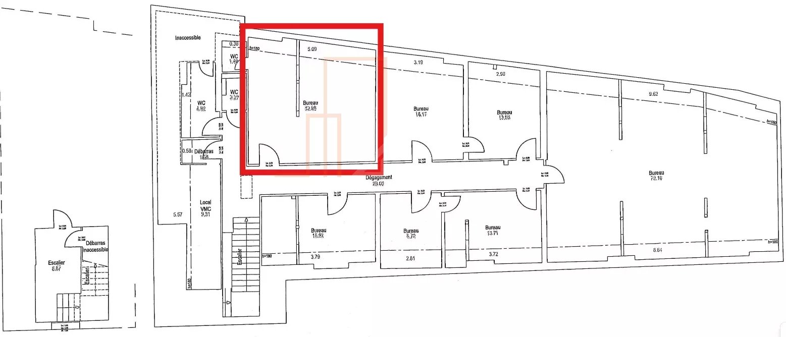
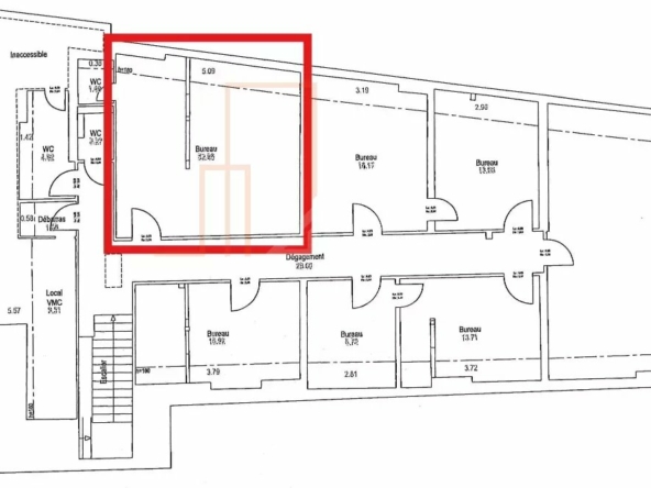
A Haguenau, en plein centre-ville (Espace Sainte-Odile), vous avez l’opportunité rare de louer une surface de 37 m² avec des WC privatifs.
Le local est situé au 4ème (et dernier) étage d’un bâtiment avec un plateau divisé en plusieurs cellules dont certaines sont déjà louées par des professions libérales.
– Loyer : 620 € HT / mois.
– Charges : 90 € de charges (chauffage, électricité, eau).
– Dépôt de garantie : 744 € TTC.
– Honoraires à la charge du locataire : 1.488 € TTC (état des lieux et rédaction du bail 3/6/9 compris).
Pour davantage d’informations, n’hésitez pas à me contacter pour prévoir une visite à votre convenance:
SARL NEO CONCEPT IMMOBILIER – RCS Strasbourg TI 788 575 652 – N° Carte pro : CPI 6701 2018 000 030 235 délivrée par la CCI du Bas-Rhin – RCP : Generali 2 rue Pillet-Will 75009 PARIS – Transaction : Non détention de fonds
Maxime BRENNER, Conseiller en Immobilier- Entrepreneur individuel RSAC 877 794 412 -
Tél: 06.16.71.33.83
Mail: maxime.b@neoconceptimmo.com
Loyer : 620 € / mois CC
Provision sur charges : 90 € / mois (récupérables)
Dépôt de garantie : 744 €















