* EXCLUSIVITE – LOCATION – HAGUENAU **
Vous êtes à la recherche d’un local commercial pour y implanter votre activité ? Ce projet est fait pour vous !
—– LIBRE D’OCCUPATION —–
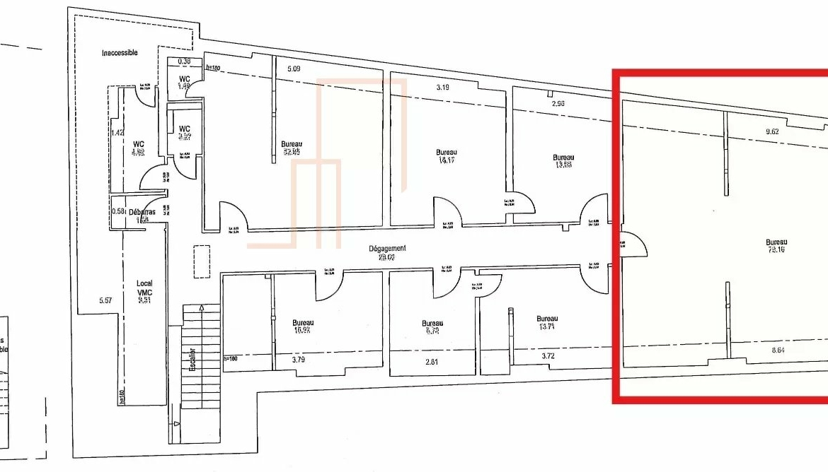
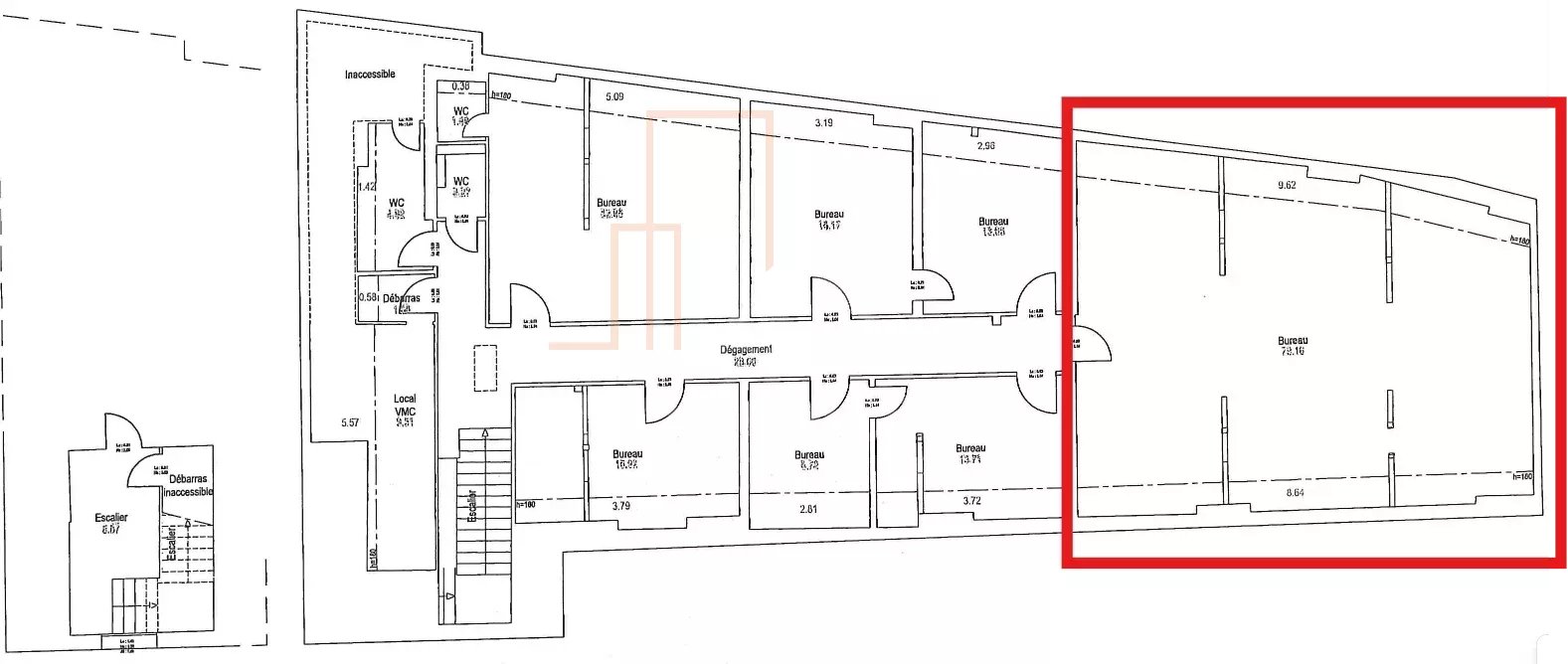
A Haguenau, en plein centre-ville (Espace Sainte-Odile), vous avez l’opportunité rare de louer une surface de 80 m² – climatisée.
Le local est situé au 4ème (et dernier) étage d’un bâtiment avec un plateau divisé en plusieurs cellules dont certaines sont déjà louées par des professions libérales.
– Loyer : 950 € HT / mois.
– Charges : 90 € de charges (chauffage, électricité, eau).
– Dépôt de garantie : 1.140 € TTC.
– Honoraires à la charge du locataire : 2.280 € TTC (état des lieux et rédaction du bail 3/6/9 compris).
Pour davantage d’informations, n’hésitez pas à me contacter pour prévoir une visite à votre convenance:
SARL NEO CONCEPT IMMOBILIER – RCS Strasbourg TI 788 575 652 – N° Carte pro : CPI 6701 2018 000 030 235 délivrée par la CCI du Bas-Rhin – RCP : Generali 2 rue Pillet-Will 75009 PARIS – Transaction : Non détention de fonds
Maxime BRENNER, Conseiller en Immobilier- Entrepreneur individuel RSAC 877 794 412 -
Tél: 06.16.71.33.83
Mail: maxime.b@neoconceptimmo.com
Loyer : 950 € / mois CC
Provision sur charges : 90 € / mois (récupérables)
Dépôt de garantie : 1 140 €









