** EXCLUSIVITÉ – VENTE – REICHSHOFFEN **
Dans le dynamique village de Reichshoffen – venez découvrir ce local présentant une surface au sol de 133.90 m² – de type restauration – situé au bord d’une route passante !
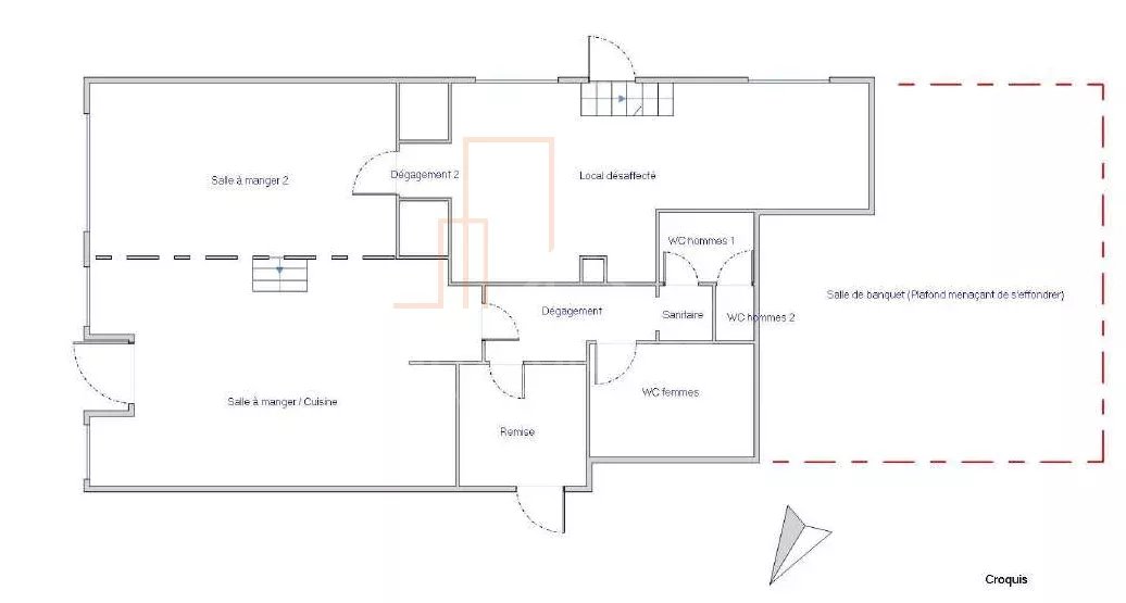
En franchissant la porte, vous découvrirez:
– une 1ère salle à manger de 43.75 m² avec bar et comptoir.
– une seconde salle située en hauteur, de 25.25 m².
– une remise de 6.25 m².
– des WC Hommes et Femmes.
Une dernière pièce de 33.95 m² à l’arrière du local, vient compléter la surface du bien, atteignant 99.95 m² (loi carrez).
Le local est actuellement loué à 800 €/mois depuis le 28 Septembre 2018.
Aucun retard de paiement – loyers à jour !
Vous l’aurez compris, ce local déjà loué, possède de réels atouts dans un village très convoité.
Pour davantage d’informations, n’hésitez pas à me contacter pour prévoir une visite à votre convenance:
SARL NEO CONCEPT IMMOBILIER – RCS Strasbourg TI 788 575 652 – N° Carte pro : CPI 6701 2018 000 030 235 délivrée par la CCI du Bas-Rhin – RCP : Generali 2 rue Pillet-Will 75009 PARIS – Transaction : Non détention de fonds
Maxime BRENNER, Conseiller en Immobilier- Entrepreneur individuel RSAC 877 794 412 -
Tél: 06.16.71.33.83
Mail: maxime.b@neoconceptimmo.com
Prix : 79 990 € FAI
Prix hors honoraires : 70 000 €
Honoraires inclus : 9 990 € TTC à la charge de l’acquéreur (14.27%).





















